河口湖を楽しみを詰め込んだ和モダンなお部屋
東方旅泊「河口湖 Highland」は富士山も見える、富士Qハイランドが近い、河口湖まですぐといった
河口湖エリアを楽し見たい方に必見の一棟貸切宿になっております。
天井が高い広々とした空間
一棟貸切の宿に設計し直したフルリノベーションをしたこの宿には様々なこだわりが見えます。
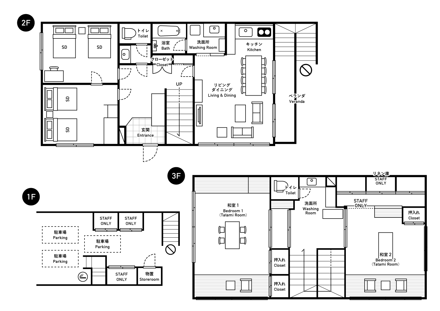
ご家族、ご友人と食事をしたり、ソファでくつろげるリビングダイニングは元々2部屋だった空間を1つの空間にしたのでとても広くお使いいただけます。大人数でも圧迫感が出ない高い天井や大きな窓も考えて設計しております。
富士山を眺めながらの時間
2階には和室が2部屋あり、そのうちの1つの和室からは富士山がご覧いただけます。
この圧巻の富士山を眺めながら過ごす時間はきっと特別なものになると思います。
もうひとつの和室はまるで旅館のような雰囲気
2階のもう1つの和室は広く設計されており、旅館のような入り口と広縁がございます。
大人数の場合やお布団でお休みになられたい方はぜひこちらの和室をご利用ください。
和モダンテイストを取り入れた寝室
普段からベッドで寝る方も安心しておやすみできるよう、ベッドも4台ご用意しております。
デスクもございますのでビジネスでの利用も充実したお時間をお過ごしいただけます。


















